







ČINŽOVNÍ DŮM SEZIMOVA
status
probíhají projekční práce
rok
2024
místo
Praha, Česká Republika
tým
Filip Hermann, Štěpánka Úlehlová, Janosch Welzien
Anotace
Studie se týká rekonstrukce jednotlivých bytů, anglických dvorků v suterénu objektu, výtahu a nástavby na objekt (zobytnění stávajícího nevyužitého podkroví).
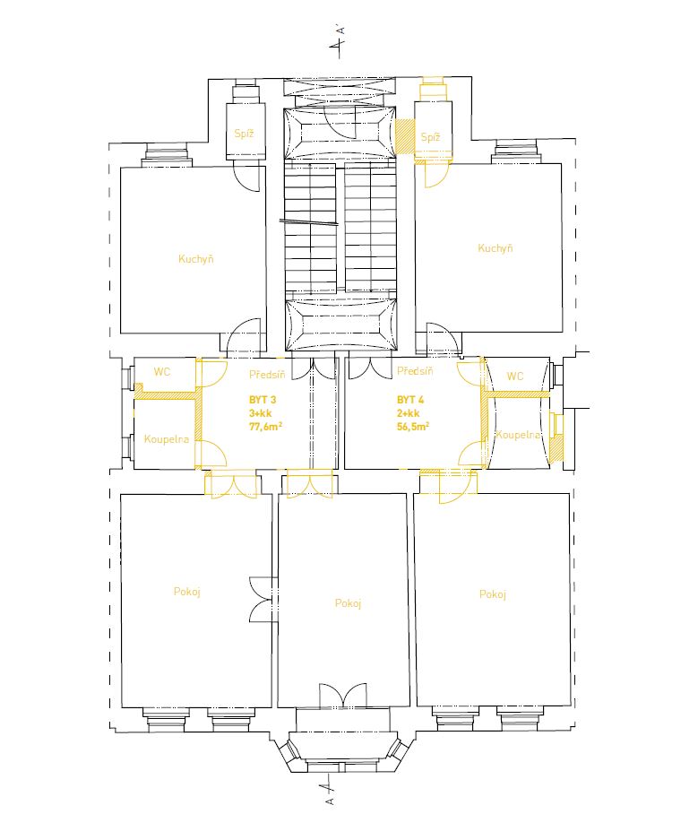
Přízemí domu projde nejmenšími úpravami, zachovány zůstanou stávající dispozice bytů. V 2.-4. podlaží navrhujeme nové členění dispozic. V těchto podlažích budou zbudovány nové koupelny a předsíně včetně zařizovacích předmětů a povrchových úprav.
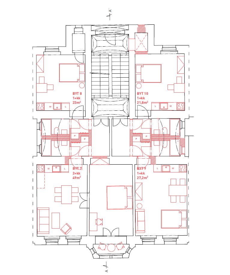
Schodiště do posledního patra navrhujeme umístit směrem do uliční fasády, zrcadlově ke stávajícímu schodišti. Byty v posledním patře tak získají více prostoru u terasy. Rozdělení bytů v 5.podlaží bude odpovídat bytům v podlažích pod ním. V 6. podlaží vzniknou dva loftové byty s terasou.
V jádru domu budou odstraněny stávající příčky koupelen a záchodů, místo nich sem bude vložena současně působící vestavba obsahující nové koupelny a předsíně. V místě současné haly v bytech vznikne zároveň malá chodba, kterou se do dvou nových bytů bude vstupovat. Společné prostory domu tak budou moci zůstat bez větších zásahů.
Uliční fasáda zůstane v rámci rekonstrukce téměř nedotčena. Do střešní roviny směrem do ulice budou pouze provedeny tři dvojice střešních oken velikosti 1400x780 mm v 5.NP a tři dvojice střešních oken o velikosti 600x600 mm o patro výše. Tato střešní rovina není z uličního prostoru viditelná.
Směrem do dvora bude stávající úroveň římsy zvýšena. Zopakováno bude jedno typické patro a dům bude zakončovat o rizalit ustoupené podlaží s terasou. Na úrovni 6.NP bude umístěn směrem do dvora pultový vikýř o sklonu 6° a před ním pochozí terasa. Střešní konstrukce bude vyměněna. Zastřešení bytového domu bude sedlovou střechou s maximální výškou hřebene střechy +21,75 m (navýšení cca o 0,45 m), výška římsy směrem do ulice zůstane neměnná. Vikýř bude v maximální možné míře barevně navazovat na střechu objektu a bude mít minimální pohledovou výšku tak, aby se při pohledech na dům projevoval co nejméně. Zároveň je vikýř umístěn tak aby mezi hřebenem střechy a hranou vikýře byl ponechán pruh šikmé střechy v šíři dvou střešních tašek a od sousedních objektů byl oddělen pruhem probíhající šikmé střechy o šířce 1,0 m.
Do objektu je potřeba kvůli realizaci nástavby doplnit výtah. Z důvodu zachování charakteru dvorní fasády není výtah navržen na fasádě, ale bude proveden místo současných spíží severně od schodiště. Malé okenní otvory při spížích budou zazděny a zůstanou na fasádě zachovány v podobě nik. Symetričnost fasády tak bude zachována.
V suterénu budou provedeny anglické dvorky, které budou sloužit jako terasy, pro zvýšení světelného komfortu v jednotkách - bytu a ateliéru. Ve dvorcích se bude nacházet jednoramenné schodiště pro přímý výstup na dvorek domu.
Studie se týká rekonstrukce jednotlivých bytů, anglických dvorků v suterénu objektu, výtahu a nástavby na objekt (zobytnění stávajícího nevyužitého podkroví).
Přízemí domu projde nejmenšími úpravami, zachovány zůstanou stávající dispozice bytů. V 2.-4. podlaží navrhujeme nové členění dispozic. V těchto podlažích budou zbudovány nové koupelny a předsíně včetně zařizovacích předmětů a povrchových úprav.
Schodiště do posledního patra navrhujeme umístit směrem do uliční fasády, zrcadlově ke stávajícímu schodišti. Byty v posledním patře tak získají více prostoru u terasy. Rozdělení bytů v 5.podlaží bude odpovídat bytům v podlažích pod ním. V 6. podlaží vzniknou dva loftové byty s terasou.
V jádru domu budou odstraněny stávající příčky koupelen a záchodů, místo nich sem bude vložena současně působící vestavba obsahující nové koupelny a předsíně. V místě současné haly v bytech vznikne zároveň malá chodba, kterou se do dvou nových bytů bude vstupovat. Společné prostory domu tak budou moci zůstat bez větších zásahů.
Uliční fasáda zůstane v rámci rekonstrukce téměř nedotčena. Do střešní roviny směrem do ulice budou pouze provedeny tři dvojice střešních oken velikosti 1400x780 mm v 5.NP a tři dvojice střešních oken o velikosti 600x600 mm o patro výše. Tato střešní rovina není z uličního prostoru viditelná.
Směrem do dvora bude stávající úroveň římsy zvýšena. Zopakováno bude jedno typické patro a dům bude zakončovat o rizalit ustoupené podlaží s terasou. Na úrovni 6.NP bude umístěn směrem do dvora pultový vikýř o sklonu 6° a před ním pochozí terasa. Střešní konstrukce bude vyměněna. Zastřešení bytového domu bude sedlovou střechou s maximální výškou hřebene střechy +21,75 m (navýšení cca o 0,45 m), výška římsy směrem do ulice zůstane neměnná. Vikýř bude v maximální možné míře barevně navazovat na střechu objektu a bude mít minimální pohledovou výšku tak, aby se při pohledech na dům projevoval co nejméně. Zároveň je vikýř umístěn tak aby mezi hřebenem střechy a hranou vikýře byl ponechán pruh šikmé střechy v šíři dvou střešních tašek a od sousedních objektů byl oddělen pruhem probíhající šikmé střechy o šířce 1,0 m.
Do objektu je potřeba kvůli realizaci nástavby doplnit výtah. Z důvodu zachování charakteru dvorní fasády není výtah navržen na fasádě, ale bude proveden místo současných spíží severně od schodiště. Malé okenní otvory při spížích budou zazděny a zůstanou na fasádě zachovány v podobě nik. Symetričnost fasády tak bude zachována.
V suterénu budou provedeny anglické dvorky, které budou sloužit jako terasy, pro zvýšení světelného komfortu v jednotkách - bytu a ateliéru. Ve dvorcích se bude nacházet jednoramenné schodiště pro přímý výstup na dvorek domu.