︎
schwerpunkt.
about
contact
instagram
CZ
/
EN
/ DE
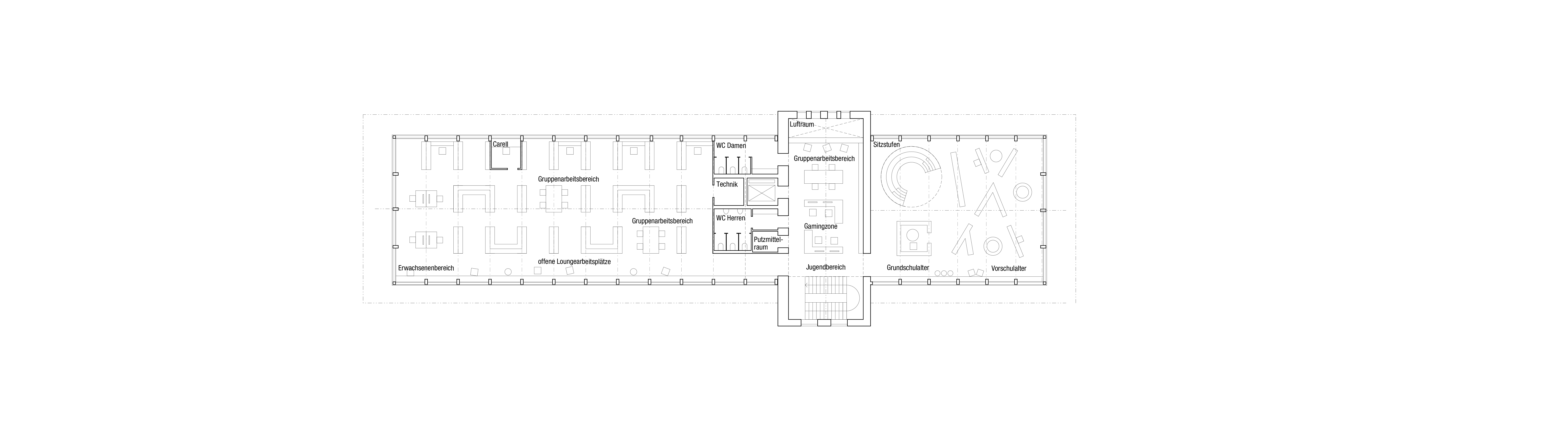
KNIHOVNA S MEDIATÉKOU
status
soutěž
rok
2021
místo
Furth im Wald, Německo
tým
Filip Hermann, Fabian Lohrer, Štěpánka Úlehlová, Janosch Welzien