about  contact  instagram

CZ / EN




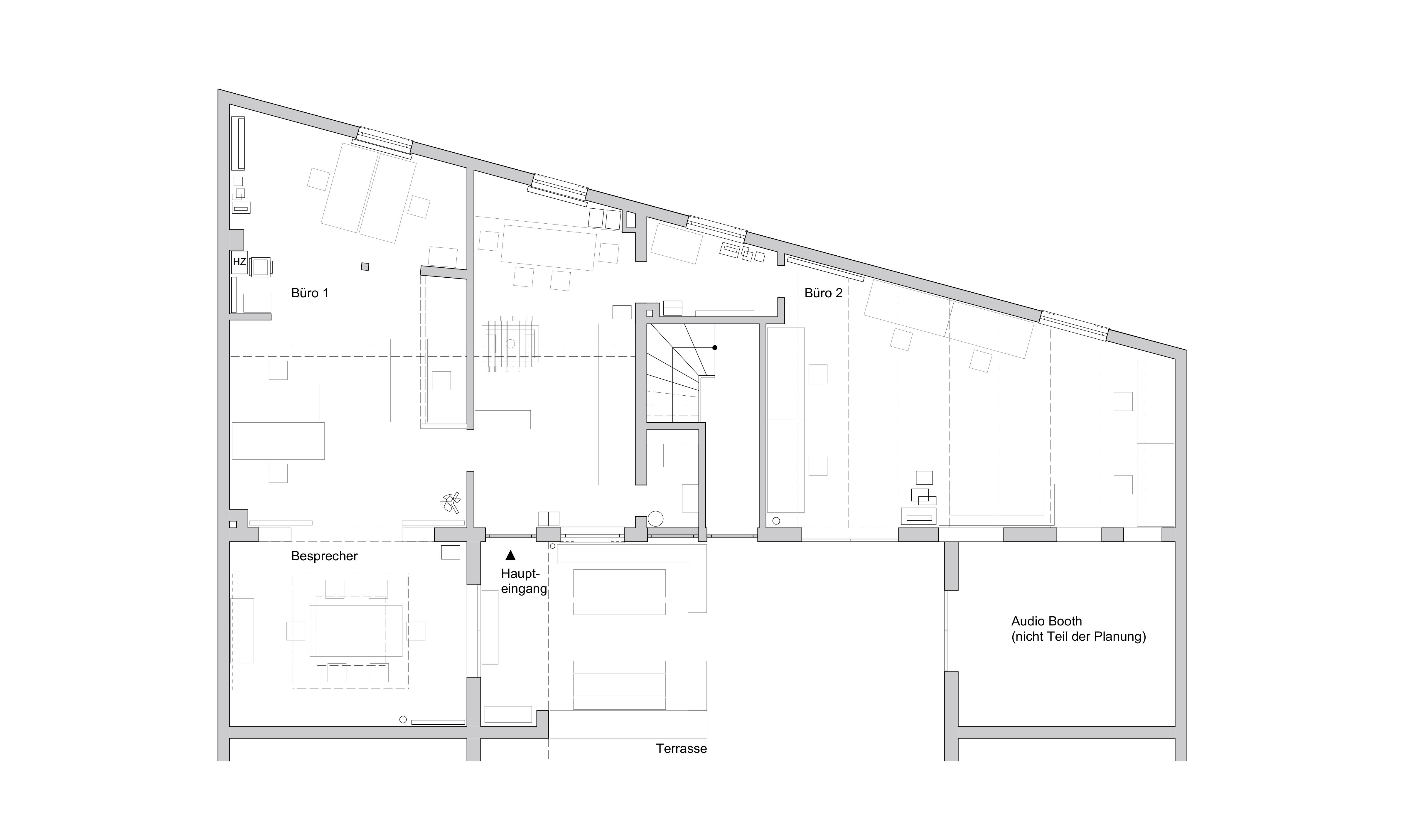
OFFICE REFURNISHMENT


status
in construction 

year
2020

location
Munich, Germany

team
Janosch Welzien